CRK-300

ID 24030  In stock
Choose another ›
ID 24030  In stock
Produc­tivity, m3 / h 204-408
Height mm 1000
Diameter, mm 300
Max. transported air temperature, °C 200
Optimal speed, m/s 0,7-1,8
Working pressure (max.), Pa: 500
Weight, kg 19,5

CRK-300

Cyclone unloader

Purpose of the cyclones CRK-300

. Cyclones CRK have been developed on the basis of cyclones CR. This is an upgraded model, which differs from its predecessor by shortened size and air inlet angle. Other characteristics of the CRK and CRK are practically identical. Cyclones CRK, as well as its prototypes, are mainly intended for pneumatic conveying - movement of bulk materials. They are used in agriculture, transport, manufacturing, construction, trade and other fields to move grain, cement, wood, sand, plastic. Cyclone for pneumatic conveying CRK-300 provides conveying of any materials with the minimum investment of resources, because its main advantage - low level of resistance, only 700-900 Pa - allows using a fan with an electric motor of less power.

Unlike their predecessors, cyclones unloaders CRK-300 have a shortened design, which greatly expands the range of their use, as they can be easily installed in rooms with small area. These cyclones in pneumatic conveying systems cope better and faster than any other counterparts when it comes to grain dust processing.

Cyclone unloader CRK can be assembled into a battery installation of 2, 4, 6 or more cyclones in a group, which greatly improves the quality of air purification.

Advantages of unloader cyclones CRK-300

  • Energy Conservation
  • Cost savings
  • Affordable price
  • Reliable pneumatic conveying system
  • Good quality.

CRK-300 cyclone construction

. The height ratio between the conical and cylindrical parts is approximately equal to one. Cyclones are equipped with a tangential swirler. The main distinguishing feature of this model from other models is the ratio of the exhaust pipe to the casing diameter. At these units this ratio is 0,6. This parameter mainly affects the aerodynamic resistance and efficiency of the unit. Such a ratio indicates the low hydraulic resistance and relatively low efficiency of this model in handling fine dust, so it is advisable to use them for transportation of coarse dust and other particles.

Cyclones CRK-300 are made of black, non-corrosive metal, but other materials are also possible. Seams are welded solid. The holes have flanges for connection with air ducts (production of any adapters is possible). Cyclone is coated with primer and packed in a special protective film. It is possible to make the cyclone with right and left-hand twist of the air flow.

Installation of cyclones CRK-300

For pneumatic conveying it is better to place the fan behind the cyclone. Under these conditions, the level of wear on the impeller will be minimal. However, in order to provide the most efficient operation and the highest performance of the unit, it is necessary to equip it with a special air expander. The most optimal in this case will be fans of the following models: VCP 5-45, VCP 6-45, VCP 6-46, VCP 7-40, VC 14-46.

When designing the system, the following parameters should be taken into account:

  • Cyclone and fan brand
  • The thickness of the duct and its total length
  • Load height
  • Aerodynamic characteristics of the fan (pressure and capacity)
  • Characteristics of the transported material.

Main characteristics of cyclones CRK-300

Model

Productivity, m3/h

Size, mm

Weight, kg

D

H

aхb

CRK-300 204-408 300 1000 96x142 19,5

The price of the cyclone unloader CRK-300 is given without the cost of the hopper, pedestal and dust gate (the cost is calculated separately).

If you want to buy the cyclone unloader CRK-300 at the lowest price, you can contact our managers in the most convenient way for you. It is also possible to place an online order directly on the site. We have an individual system of discounts for regular customers, or when placing a large order. The company regularly announces special prices on popular products that are in stock. If you need advice on purchasing or selecting products, or you are interested in the full price list, our managers will be happy to help you. Price of cyclone unloader CRK-300 in our store is almost always below average. We do our best to provide our customers with the highest quality goods and service for a reasonable price.

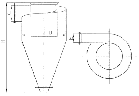
Dimensions

DIMENSIONS OF CRK-300

Overall dimensions are approximate. Photos are for reference only.
Due to the constant modernization, for accurate data, please contact the managers.

ciklony_crk_gab

Model Overall dimensions, mm
D H a b
CRK-300 300 1000 96 142

Reviews

There are no reviews yet.

Be the first to review “CRK-300”

Your email address will not be published. Required fields are marked *