| Model | x4 |
|---|---|
| Productivity, m3 / h | 25880-30730 |
| Height mm | 8480 |
| Diameter, mm | 1200 |
| Width, mm | 3165 |
| Max. transported air temperature, °C | 400 |
| Working pressure (max.), Pa: | 500 |
| Inlet Length, mm | 922 |
| Inlet Width, mm | 394 |
| Mass concentration of dust in the purified gas, mg/m3: | 250000 |
| Weight, kg | 5770 |
SCN-40-1200х4
SCN-40-1200х4
The High efficiency cyclone dust collector of single version SCN-40-1200х4 is designed for efficient cleaning of gases and aspirating air from fine and fine dust. The particle size of the SCN-40 is the best among all NIIOGAZ cyclones and amounts to 1 micron. The high degree of cleaning in the cyclone is achieved by increasing the intensity of gas rotary movement in the cyclone body and at the same time reducing the radial flow rate in the direction of the exhaust pipe.
Advantages:
- Good air purification efficiency (90-98%).
- Can be used at any enterprise.
- No analogues.
- Reasonable price.
- Simple design.
Operating Principle:
The unit cleans the gas through the downward spiral movement of the cyclone. After swirling the flow, centrifugal force acts, which directs solid particles from the center to cyclone walls, where they fall down.
Material movement in the cyclone:
- Gas, dust, sand, metal enter the cyclone through the side opening where it begins to be cleaned.
- Solids after swirlage reach the cyclone walls and sink downwards gradually reaching the hopper (velocity 3-8 m/s, number of revolutions 3-7).
- The dust is accumulated in the hopper.
Design:
This model is made of stainless steel for food industry, or black metal (other material is under the order). The holes come with flanges, which are used to combine all the elements into a single system. SCN-40-1200х4 is covered with paint and wrapped in film. Right-handed and left-handed cyclones can be made. Cyclone SCN-40 is combined into a battery system from 2 to 10 pcs.
Cyclone is equipped with a hopper. Type, metal thickness, dimensions, form, price depend on cyclone working conditions and customer wishes. The hopper is produced according to the intervals between the desired cleaning periods.
Assembly:
Dust-fan moves gas through the cyclone SCN-40, and cyclone, in its turn, filters it. The fan can be located either before the cyclone or behind it. In the first case it is reasonable to place dust fans. In the second case fans VC 14-46 can be installed, but in the presence of air spinning.
Main characteristics of SCN-40-1200х4 cyclones:
|
Model |
Productivity, m3/h |
Size, mm |
Weight, kg |
|||
|
D |
H |
B |
axb |
|||
| SCN-40-1200x4 | 25880-30730 | 1200 | 8480 | 3165 | 922x394 | 5770 |
Pricing:
Cyclone SCN-40-1200х4 price is given without cost of hopper, pedestal and dust gate (cost is calculated separately).
If you want to buy a highly efficient cyclone dust collector of single version SCN-40-1200х4 at the minimum price, you can contact our managers in the most convenient way. It is also possible to place an online order directly on the site. We have an individual system of discounts for regular customers or when placing a large order. The company regularly announces special prices on popular products that are in stock. If you need advice on purchasing or selecting products, or you are interested in the full price list, our managers will be happy to help you. Price for high efficiency cyclone dust collector of single version SCN-40-1200х4 in our store is almost always below average. We do our best to provide our customers with the highest quality goods and service at a reasonable price.
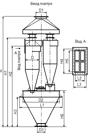
Dimensions
DIMENSIONS OF SCN-40-1200х4
Overall dimensions are approximate. Photos are for reference only.
Due to the constant modernization, for accurate data, please contact the managers.

| Model | Overall dimensions, mm | |||||||||||||
| D | D1 | D2 | D3 | H | H1 | H2 | H3 | H4 | H5 | H6 | L1 | L2 | L3 | |
| SCN-40-1200x4 | 1200 | 920 | 2470 | 300 | 8480 | 6904 | 6261 | 1680 | 984 | 922 | 2536 | 2682 | 394 | 456 |



Reviews
There are no reviews yet.